There are many factors that go into deciding to keep an existing home on a site or to demolish and rebuild a new home. With land becoming a scarcity, clients often find themselves purchasing existing homes and then deciding whether to renovate, add on, or demolish and build new to suit their needs. Sometimes, the path is clear. Oftentimes, it’s a tougher decision. We at Berkshire Design, Inc., help clients to decide through on-site discussions with the project team and through the design process, including any site specific hurdles they may face, such as zoning by-laws and homeowners associations. (We’ll save the Conservation Commission conversation for another time, as they also play a crucial role and are critical components in many projects).
Special Permit, Variances, Zoning Boards
One significant reason we see owners wrestle with the decision to tear down or renovate a home has to do with zoning by-laws and preexisting nonconformities. For example, most of the homes on lakes all over Berkshire county started as simple cabins that were added onto over time, some gradually winterized. And almost all of them came into existence before each town adopted its own zoning by-laws, which means that a significant number of lakeside properties do not meet the current lot size or setback requirements, making them preexisting nonconforming. This limits what an owner can do to their property through a traditional building permit. In some towns, if you are preexisting nonconforming, that automatically triggers the need for a special permit or variance if you want to make changes to your footprint or alterations to your property. In other towns, as long as those changes or alterations don’t further encroach upon the nonconformity, you can pursue a standard building permit. These are simplified examples, as there are other factors, of course, such as lot coverage, lot size, setbacks, frontage, height, mean water lines, etc. Ultimately, starting with the building inspector if you’re unclear about the viability of your project is a good idea. Some towns will even allow a preliminary review or discussion with the zoning or planning boards early in the process to clarify the path that will need to be taken for a project to be approved. And if you have a design professional involved, they are very skilled at laying out the road map for you and communicating with the town or city.
A recent project that went through the special permit process was in such disrepair that it was dubbed the “Murder Cabin,” which we thought was fitting. With a name like that, the responsible thing to do here was to tear the structure down and start over, but that decision was more complicated than just a visual inspection. Because the structure had been abandoned for more than two years, it lost its preexisting nonconforming status, which means we were faced with two special permits needed even to maintain the building. The first special permit was to reestablish the preexisting nonconformity. The second was to add a small entry addition within the footprint of an existing deck. The cabin was only feet from the water, a condition that would never be approved today or allowed in the case of new construction. But without the preexisting nonconforming status, there was no place on the site that the owner could legally build new, forcing the owner to maintain the existing cabin but with extensive renovations through the hopeful approval of two special permits. Or so we thought Working with the zoning board reopened the option to demolish the existing structure and build new. It would be at a much greater price tag, and access to the site was complicated, but the ZBA provided some leeway within the existing restrictions in order to prioritize goals that would serve the town and the client better in the long run—mainly, putting more distance between the house and water to alleviate flooding of the structure and to return a buffer zone to the lake. This meant pushing the house back from the water and raising it on piers, which proved a delicate dance given that there is a very steep hillside constricting the buildable area of the site. In order to mitigate costs, we didn’t want to risk destabilizing the hillside or excavating into it with a retaining wall, so we raised the house ten feet in the air on piers and posts. That allowed us to push the house further back from the water’s edge. The project is currently slated to begin construction in early 2026, and serves as a successful example of working with a town through an approval process.




In another case, previous owners of a property had altered a lot size which unknowingly forced the next owner to conform to stricter setback requirements per the zoning by-laws pertaining to altering preexisting nonconforming properties. This presented a hardship for the new owners and led them to seek relief through a special permit. It’s still underway. Similar to that in another town is a restrictive 50’ side yard setback that is pretty uncommon in most residential zones (20-25’ is more typical) but does happen here and there. For one particular project, it means they’re stuck with a garage that isn’t even large enough to park a car inside. Well, you can get a very small car in there, but being able to open the doors is another issue. Either adding onto the garage or creating a covered car port beside the garage is the relief we’ll be seeking for this project, a time-consuming, no-guarantee process.




All that being said, the zoning and planning boards in Berkshire county are great to work with, approachable, and they share the project goal of responsible property development.
Home Owners Associations
In addition to any restrictions the town imposes, an often unknown entity that some homes in Berkshire county face is homeowners associations. HOAs are typically concerned with smart development, aesthetics, lighting, and site work. All are organized and clear with their guidelines, and even though much of the discussion with HOAs can be subjective by nature, HOAs are able to provide constructive feedback that oftentimes leads to stronger designs and therefore stronger neighborhoods. We see HOAs at every level of the market. A recent project that comes to mind went through an HOA process that felt more neighborly than formal. The owners met with an HOA member on site, discussed the project, talked about the expected schedule, walked the site, and parted ways with an approval and appreciation for the engagement. A different project went through a similar process, though more formal in nature. Conservation of a shared meadow was at the forefront of mind, as it should be. We and other consultants had to illustrate to the association that the proposed renovation and addition of the existing house would not be more detrimental to the neighborhood, would in fact enhance the neighborhood by addressing severely deferred maintenance, would provide natural vegetative screening for the neighbors, would provide positive benefits to the meadow, and would adhere to dark sky lighting principles. Attention was paid to materials and the color palette. The process was thoughtful on both sides, and an approval was rendered soon after. In each case, the HOA remains attentive through project completion.
Here are a few excerpts from area HOA handbooks:



Design Process
Getting the lay of the land with site surveys, zoning and any potential HOAs is typically part of the initial existing conditions, which also includes existing plans and exterior elevations of a home. The Schematic Design phase then helps us refine the best next steps.
Addition / Renovation
For instance, when our office visited one particular house a few years ago, a few things stuck out. The entrance was lost. The deep overhangs placed the entry door in shadow and at the intersection of the L-shaped house, where the rooflines came together to dump rain and snow at the approach to the door. The basement had very little natural light and was not inviting. The backyard was mostly a deck with very little connection to the land. The existing garage floor was buckled everywhere and the chimney was failing. All of that could be alleviated through design and construction. But it was worth the exercise of going through schematic design pursuing two tracks: tear it down and build new, or renovate and add on to the existing house. Which track makes the most sense financially is always part of the equation (you can fix anything with enough money – doesn’t mean it’s a good idea), but the project team has a stronger duty to determine the most responsible course of action for the site, the house, and the clients.
We started by studying the existing footprint of the building. Could it hold the new program? The existing house had several bedrooms and bathrooms, a living room, a dining room, an eat-in kitchen, laundry room, garage, and a full basement with several cut up rooms. The new program called for similar rooms, but with some additional family gathering spaces, a screened porch, pantry and mud room.
The existing first floor could hold much of the new program, but was reworked for an improved layout and circulation. With three modest additions, the first floor started to flow nicely and function in a way that was more tailored to the new owners. It also opened up flexibility for the lower level. On the lower level, if the only thing we did as a design team was to remove the existing deck and regrade at the rear basement wall for better natural light, it would have had a tremendous impact. But combining those two moves with the increased footprint created by the first floor additions really started to root the house to the landscape. The addition of a second floor dormer captured more of the existing floor plate so that a third bedroom would no longer be undersized (and underutilized). This was a relatively simple way to reconfigure the second floor without adding square footage beyond the existing floor plate. Another trick to let more light into the house was to cut back the existing roof overhangs.
The other design tracks we were pursuing in parallel was taking down the existing house and reusing the existing foundation; or removing the existing house and foundation altogether. We quickly determined that leaving the existing foundation really wouldn’t result in a floor plan much different from the renovation and addition track we were pursuing, and at that point we could save on some of the construction costs by reusing much of the floor and roof framing already in place. We then pivoted to new construction altogether. Siting the new house wouldn’t necessarily result in a much different location because of zoning and the HOA that is in place. We designed several new home schemes in a similar location to the existing house. All were great options, but none was dramatically more enhanced than doing a renovation and addition to the existing house. And each included a significant price tag for removing the existing house and foundation. From a construction cost standpoint, it seemed that new construction would be several hundred thousand dollars more expensive. From a design standpoint, it seemed that we could make any option work beautifully and aesthetically for the clients. From a reuse standpoint, it seemed we could avoid the wastefulness of exhuming the existing house and foundation. Ultimately, during the schematic design stage, we decided to continue with the addition and renovation track, a choice that also seemed acceptable to the HOA.
New Construction
So, is there a simpler way to determine whether to save an existing house or build new? A great way is to live in it for a bit. If the home is mostly functioning in a positive way, then it’s as simple as listing the ways the home could be improved to function better. If, in order to live in the house, you need camping provisions, well that’s a pretty easy way to determine that the house is too far gone to save.

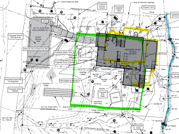
For this property, it was quickly determined that the existing cabin was too far gone to be restored, so the project team pivoted to a new construction home that would be less non-conforming and would move the rear wall of the house behind the setback. The blue line is the water’s edge, the green line marks the buildable area of the site, and the yellow outlines the existing house. The dark gray mass is the proposed footprint (currently under construction).


OUTCOMES
Once any red tape has been overcome, construction begins. Undergoing a total and complete renovation can feel daunting for a homeowner. And truth be told, there are moments during the process when the project team asks themselves and each other “Should we have just started over with new construction?” Sometimes, it’s clear from the beginning when a project needs to be rebuilt, but most times there’s a way forward with the existing structure even with a few surprises along the way. You just never know what you’re going to find once you start opening up walls and assemblies. Rot, squirrels’ nests, insufficient foundations, mold, busted electrical, water damage. Those we expect—we’ve seen some pretty creative work by squirrels over the years. Here’s the thing: When you enter a room and are completely overcome with the scent of urine, it’s easy to want to run a pay loader through the house. And when the contractor (with a mask on) opens the walls and finds insulation soaked with the urine, feces and decomposing bodies of mice, it’s easy to want to light the house on fire and start over. But when there’s still a lot of quality left in the house, and the bones are good, we have to push forward with correcting the problems and building for the next 100 years.

In the end, whether building new or renovating/adding on, rounding out your project team with skilled professionals can make any project run more smoothly, feel less lonely and more understandable. Not to mention, gaining you spaces that function optimally for you and your family to enjoy for many years to come. And when you end up with spaces like those pictured below, it’s tough to argue whether building new or renovating/adding on is the better choice:











Editor’s note: Kerry Bartini, AIA, NCARB is a principal at Berkshire Design, Inc. in Pittsfield, MA. She is a licensed architect in the states of Massachusetts, New York, Connecticut & Florida. She is the current chapter President of WMAIA, is the AIA MA State Licensing Advisor to NCARB, and is NCARB’s current Chair of the Education Committee. She is a proud graduate of Roger Williams University and the Berkshire Leadership Program and one of the founders of The Millie Foundation scholarship program.





